a

SOLD
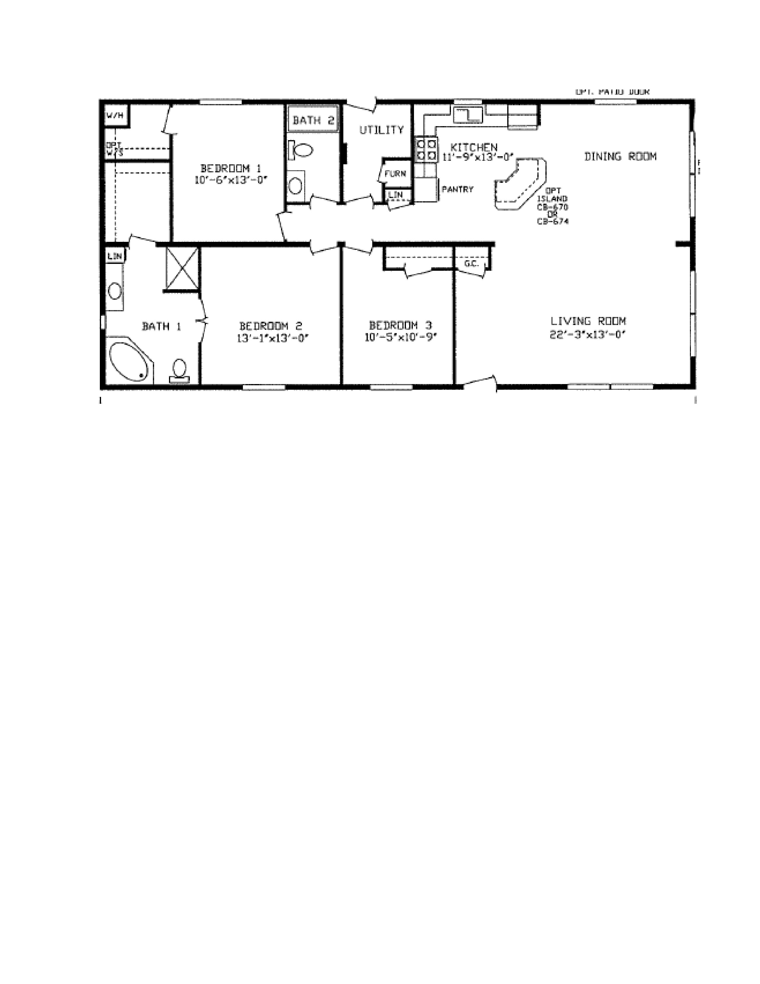
28x56
3 Bedroom
2 Bath

Nice end front living/dining room layout
Sheetrock walls thru out and stainless steel appliances
Stove, frig, microwave, washer/dryer & water softener
Great condition