Follow Us
x
a
!
Appointments
Recommended
We Are VA, FHA, and
Rural Development Certified
All-Inclusive Pricing
General Contracting Available
A+ Rating with the
Better Business Bureau
Call us today (320) 693-7993
Home
Manufactured Homes
Modular Homes
Pre-Owned
Exteriors
Testimonials
FAQs
Blog
Promotions
Contact Us/Hours
(320) 693-7993
Directions
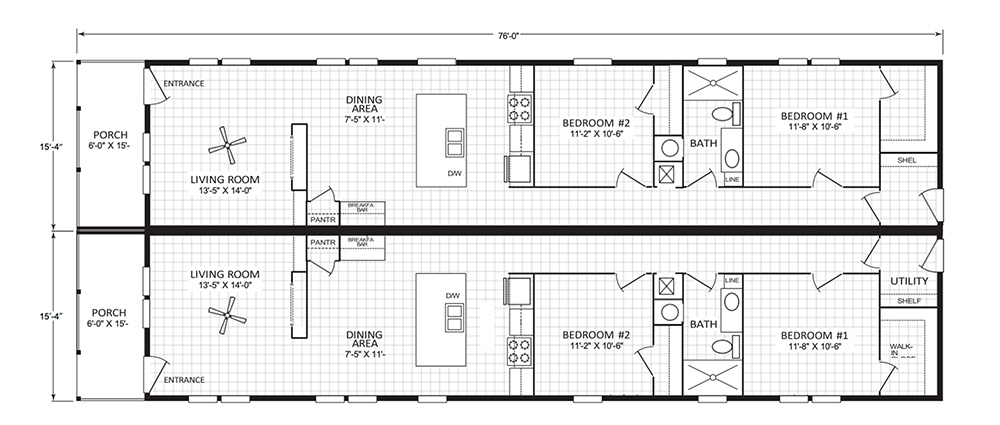
The Cumberland Duplex
32x76
Great Investment Property
Request a Quote
Download PDF