Follow Us
x
a
!
Appointments
Recommended
We Are VA, FHA, and
Rural Development Certified
All-Inclusive Pricing
General Contracting Available
A+ Rating with the
Better Business Bureau
Call us today (320) 693-7993
Home
Manufactured Homes
Modular Homes
Pre-Owned
Exteriors
Testimonials
FAQs
Blog
Promotions
Contact Us/Hours
(320) 693-7993
Directions
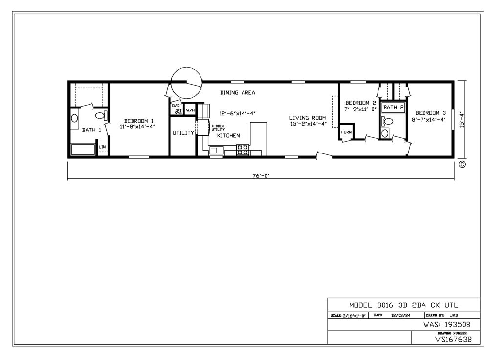
The Vista 193508
16x76
1,165 sq ft
3 Bedroom
2 Bath
Best Value Series
Over $4,000 of upgrade options standard
Request a Quote
Download PDF